Techos House
Arquitecto:
MATHIAS KLOTZ
Colaborador:
Alejandro Beals
40°45’59.90″S
71°39’22.12″O
La Angostura
Argentina
Superficie casa: 650 m2
Superficie terreno: 9409 m2
Casa Techos is a holiday house located in the north part of Nahuel Huapi Lake, Southern Argentina.
The house lies between the trees in the lower level of the site, next to the lake, and with the main view towards it.
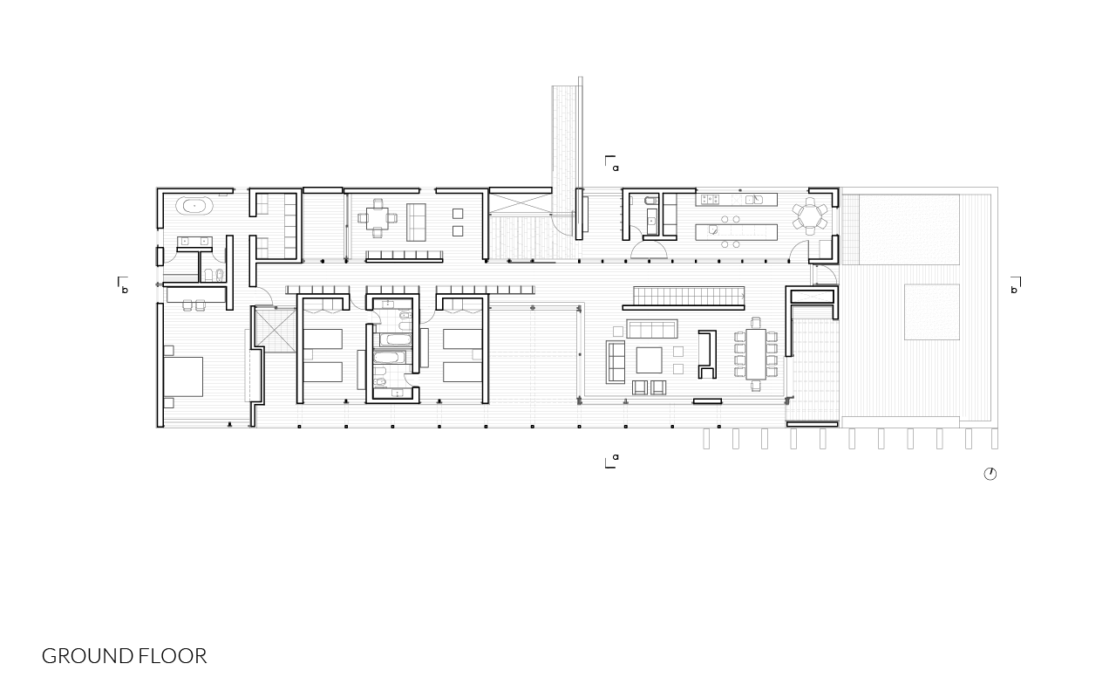
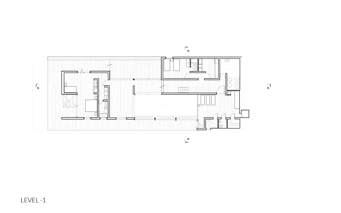
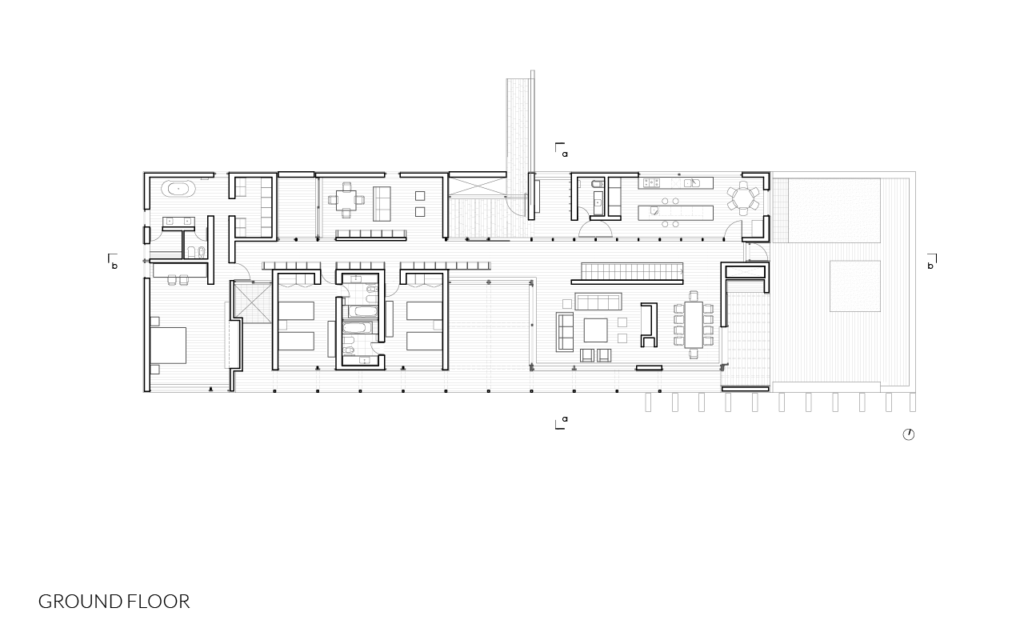
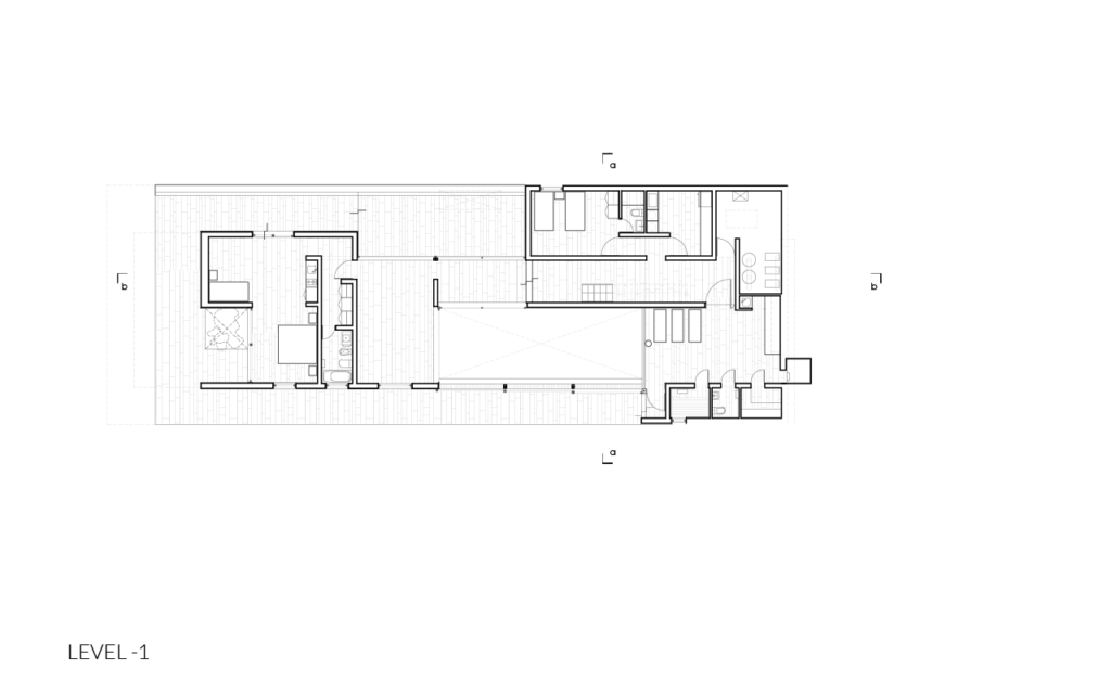
The program is divided in two levels: ground level, where public and family spaces are located, guest and service areas are located in the lower level.
Local construction regulations impose the use of pitched roofs, along with the clients desire to obtain natural light in the interiors, determining utilization of a cooper roof with a window facing north. This glass surfaces could be covered or not, depending on the space that lies beneath.
The use of terraces and patios in the plan increases the perimeter of the enclosure and establishes a gap between the different spaces. Along with the skylights, they generate different relations with the natural surroundings and between the different rooms of the house.
Principal materials are concrete, wood and copper.









