Vitacura Building
33°24’14.16″S / 70°35’44.06″O
MATHIAS KLOTZ / RENZO ALVANO / PABLO RIQUELME
Pedro Pedraza / Sofía Valdivieso
Santiago , Chile
2013
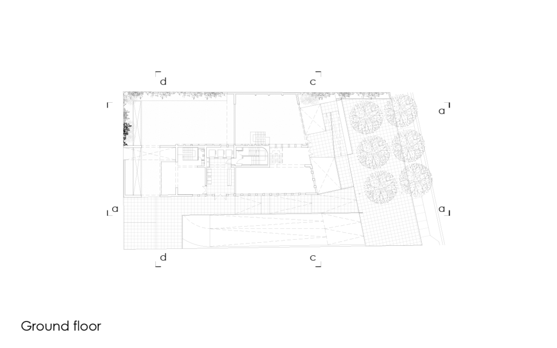
The Vitacura building is the first commission for an office building that, despite its lack of stature, attains a certain monumentality with its proportions.
The building, designed together with Pablo Riquelme and Renzo Alvano (former members of the studio) was originally intended as a hotel, until the investors decided offices would be a better option.
The challenge of this project was to make the materials for the structure and finishes match, and to maximize the efficiency of each floor, thus minimizing the cost of construction.
Fortunately, the regulations obliged us to build a very deep and narrow building set apart from its neighbors, a characteristic we sought to exaggerate in the design, dividing the volume in two and treating the façades differently with the aim of optimizing their design in relation to their orientation.




















