• Biography
  • Contact
  • Projects
  • Publications
  • Works
Mathias Klotz
  • Works
  • Projects
  • Biography
  • Publications
  • Contact
  • Instagram
  • English
    • EspaƱol

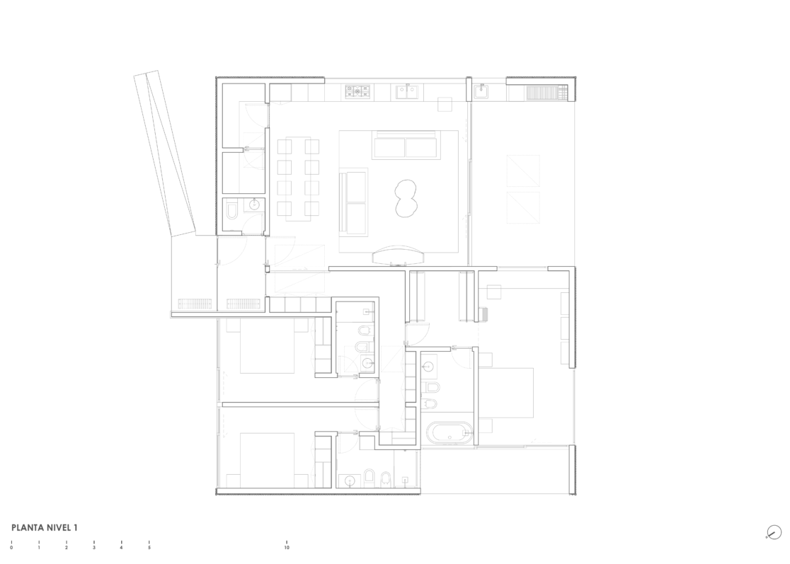
Mia House