A R Q U I T E C T U R A
M A T H I A S K L O T Z
C A R O L I N A P E D R O N I
ARQUITECTO COLABORADOR
Maximiliano de La Jara
Roberto Hirribaren
Nathanael Becerra
SUPERFICIES
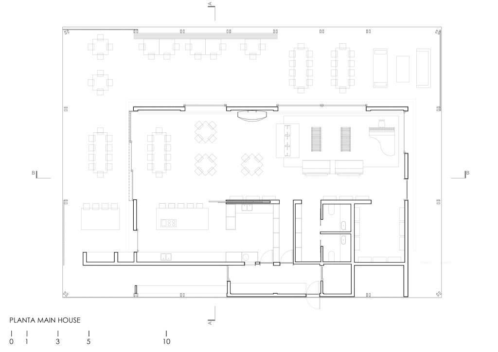
Main House: 224 m²
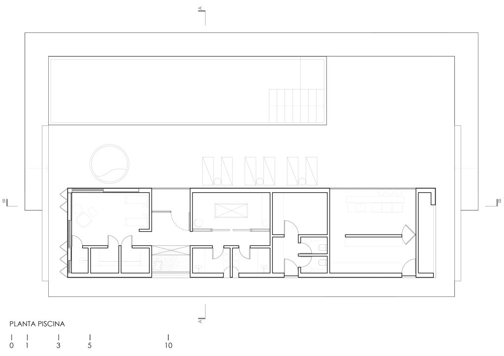
Spa: 134 m²
UBICACIÓN
LAS MUSAS, URUGUAY
AÑO DEL PROYECTO
2024
El Main House y Spa Las Musas, es un complemento a un proyecto mayor, ubicado en Las Musas, José Ignacio, Uruguay.
Se trata de una especie de Club House, donde se hacen comidas, encuentros, pequeños conciertos, y todo tipo de encuentros sociales. A esto lo acompaña una gran piscina y un pequeño spa para masajes y relajación, además del espacio de yoga , construido hace ya unos años.



























