LR HOUSE
34°31’59″S / 58°28’22″W
MATHIAS KLOTZ + EDGARDO MINOND
Collaborators: Nazareno de Souza – Yamil Kairuz
Constructor: Pavic S.R.L.
Structural Engineers: ARS Ingeniería – Stescovich
Location: Buenos Aires / ARGENTINA
2025
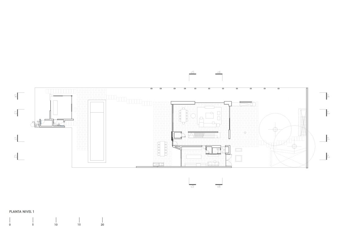
The LR House is a home located in San Isidro, Buenos Aires. It is a single-family home on a narrow, deep lot in the center of the block.
On the ground floor, we located the entire public program along a sequence of successive spaces, flanked by two pergolas, overlooking the front and rear gardens, respectively. The common space is continuous and can be traversed both physically and visually along the entire length of the lot.
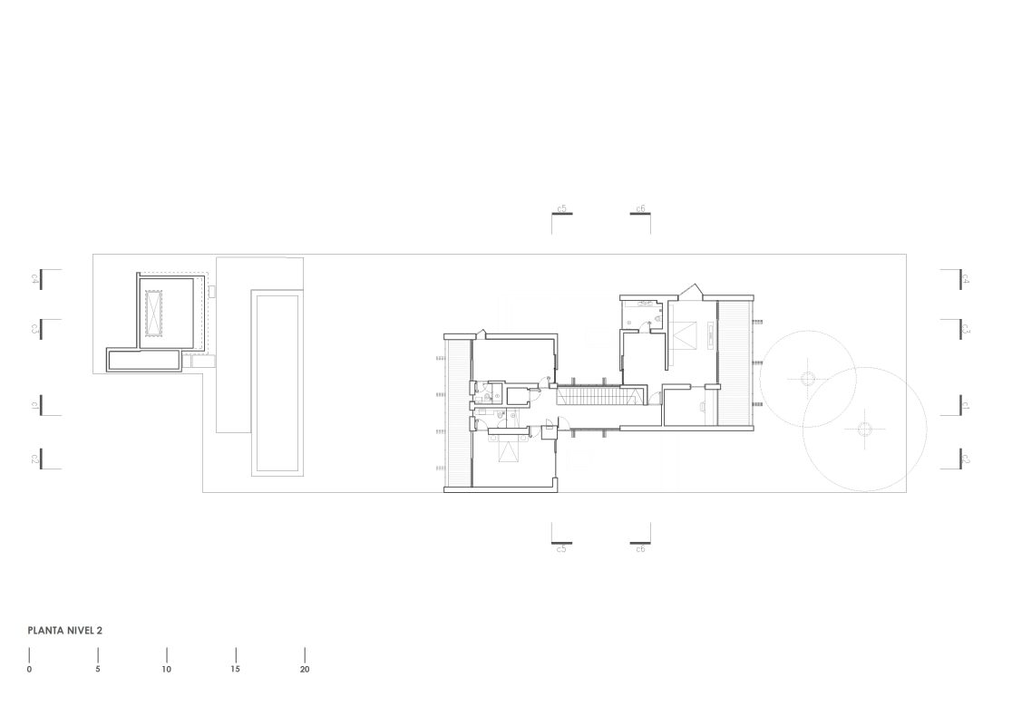
The bedrooms are located on the first floor, and the garage is located in the basement. The name of the house corresponds to a prominent pink lapacho tree located in the garden in front of the street, which determined the access route, the location of the master bedroom, and the access to the garage.
The house is materially conceived as wooden volumes on a concrete and glass base.
The materials used are wood, stone, concrete, and glass.






































