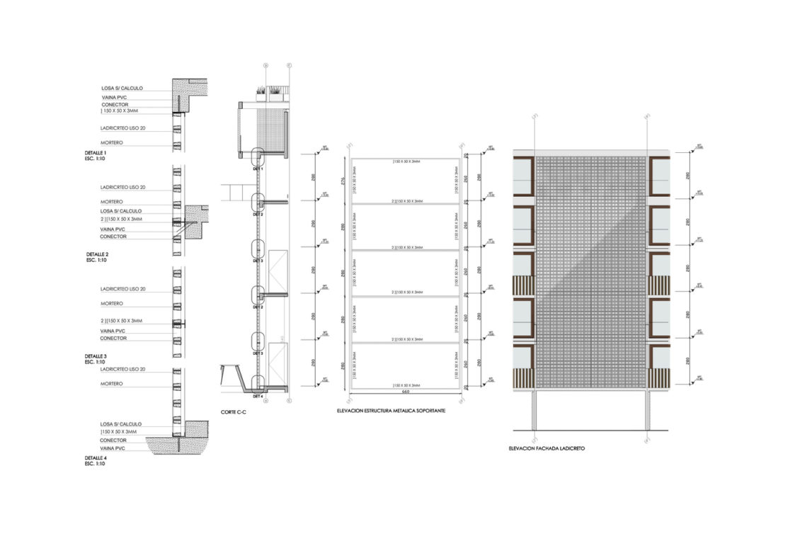
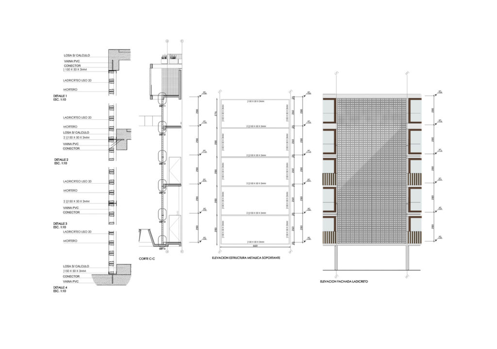
Edificio Seis
EDIFICIO SEIS
33°24’43.21″S / 70°35’44.84″O
MATHIAS KLOTZ / SML ARQUITECTOS
Eduardo Ruiz /Nicolás Reitze
Santiago, Chile
2013
El edificio Seis, es un encargo hecho por Franco Somigli, un fugaz colaborador del estudio, que terminada su práctica de oficina, se independizó y montó su propio estudio. Junto a otros arquitectos jóvenes se asociaron y comenzaron a desarrollar proyectos inmobiliarios para luego presentarlos a inversionistas que quisieran desarrollarlos. Así fue como desarrollaron el anteproyecto para el edificio Seis, y luego me solicitaron desarrollarlo como socios de modo de incorporar un arquitecto con mas experiencia y dar de esta forma tranquilidad a los inversionistas.
El anteproyecto era muy interesante, por lo que agradecí esta invitación y así juntos desarrollamos este edificio de departamentos de formato mediano, muy bien localizado en que cada unidad funciona mas bien como una casa que como vivienda colectiva.












































