A R Q U I T E C T U R A
M A T H I A S K L O T Z
ARQUITECTO COLABORADOR
Maximiliano De La Jara
Roberto Hiribarren
SUPERFICIES
945 m2
UBICACIÓN
SANTIAGO, CHILE
AÑO DEL PROYECTO
2022
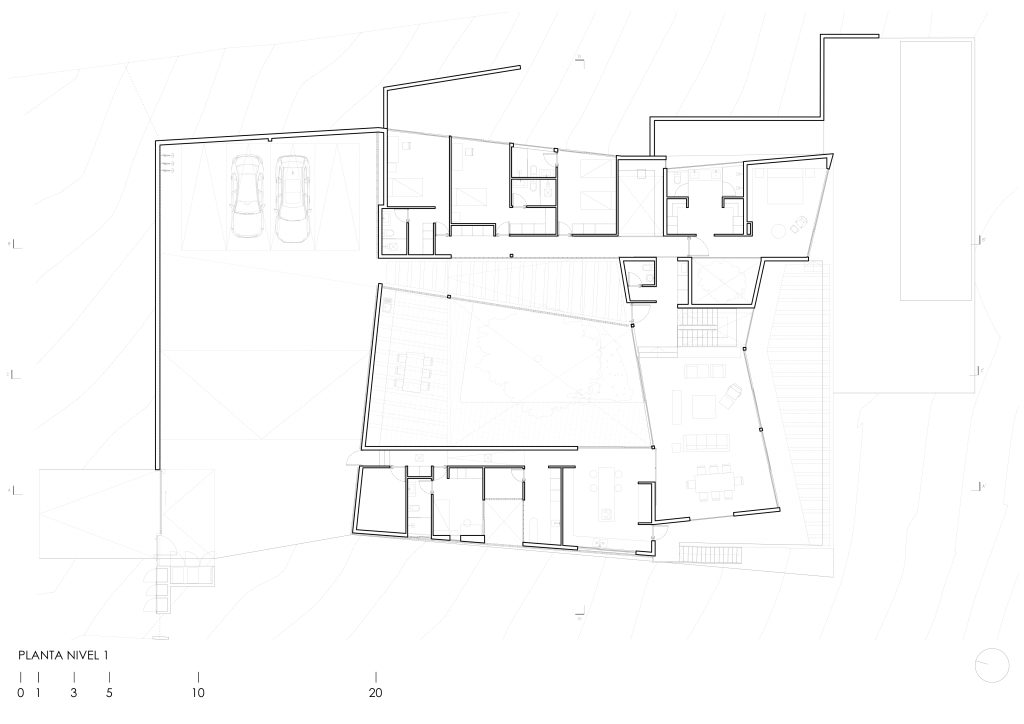
La casa Clark es una vivienda unifamiliar ubicada en un sitio con una pendiente del 12%, en los faldeos de la precordillera de Santiago de Chile.
La casa se organiza en torno a un patio central a nivel de terreno, que conserva un par de espinos preexistentes en terreno. Hacia el oriente las habitaciones , al poniente el servicio y con orientación norte sur el estar comedor
Aprovechando la pendiente, se crea debajo del estar, una zona de tv y juegos en un piso zócalo.
La casa se resuelve constructivamente en hormigón armado en su totalidad, y para ganar luz natural, una serie de tragaluces aparecen en la cubierta para este fin.























