32°36’58.7″S 71°25’43.5″W
MATHIAS KLOTZ
Liliana Silva
Cantagua, Chile
1998
La Casa Reutter es una casa de veraneo ubicada en la ladera de un bosque de pinos sobre la playa de Cachagua, 140 Km al norte de Santiago de Chile.
Se trata de una segunda casa fuera de la ciudad para uso de fin de semana y vacaciones, con la posibilidad de trabajar a distancia en determinados períodos.
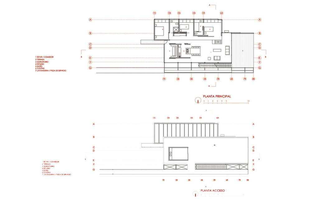
El terreno presenta un desnivel entre dos calles, el cual, es aprovechado para partir de la cota superior como nivel de acceso a través de un puente, situando la casa entre los árboles de modo de ganar las mejores vistas sobre la costa, e independizar la construcción liberando el terreno.
El proyecto consiste en dos volúmenes rectangulares apoyados sobre una quilla, elevando el espacio habitable 4 metros sobre el nivel del terreno.
El volumen mayor contiene el programa de espacios públicos, en tanto que en el menor se encuentran las habitaciones y los baños.
Un tercer volumen de hormigón armado atraviesa el espacio principal, constituyendo un núcleo que alberga el dormitorio de servicio y lavandería en primer piso, cocina y sala de TV en el segundo, y estudio en el tercero.
La casa situada entre dos calles con una pendiente de 30º entre ambas, y gran cantidad de pinos por el borde norte, se eleva y marca la horizontal, accediendo a través de un puente de 30 m de longitud, que va literalmente trepando los arboles.
Se llega al techo de la casa, desde el que se baja a la terraza del estar, para luego ingresar.
La materialidad de la casa es mixta. La base es un muro de hormigón armado que sostiene una losa. Los dos volúmenes en volado son resueltos en estructura metálica, forrada en madera de alerce el mayor y en cobre el menor, de modo de integrar esta “casa en los árboles” con el entorno .
Estos materiales fueron seleccionados para ir envejeciendo en el tiempo y aprovechar sus óxidos, ya que la madera se tornará gris y el cobre se irá poniendo verdoso.
Interiormente el material predominante es placa de madera aglomerada en muros de dormitorios y cristal en el espacio público.
Los cielos son en ambos casos de placa contrachapada de madera y los pisos son de placa en los dormitorios y de pastelones de cemento en el espacio público.
La Casa Reutter es un ejercicio de equilibrios y tensiones tanto estructurales como programáticas. Marca además un punto de inflexión o el término de una etapa de cajas de madera, dispuestas como elementos autónomos, relacionados con el contexto en una condición pasiva de miradores, para pasar a ser un elemento dinámico que se entrelaza con el entorno. Es también el primer proyecto en que la solución estructural está forzada por la búsqueda de un objetivo ajeno al puro sentido común que evidencian los primeros trabajos.





















