33°21’43.5″S 70°28’56.6″W
MATHIAS KLOTZ
Hector Hormazabal
Santiago, Chile
2013
La casa Perez-Magi es una vivienda unifamiliar ubicada en la ciudad de Santiago en el sector del Arrayan a los pies de la Cordillera de Los Andes.
El sitio es rectangular, con una gran fachada orientada al norte, con una excelente vista al entorno montañoso natural.
La casa está centrada en sentido longitudinal del terreno, en tanto está ubicada más al sur del terreno para tener la mayor cantidad de terreno orientado al norte para lograr un jardín soleado, donde un huerto provee de vegetales frescos.
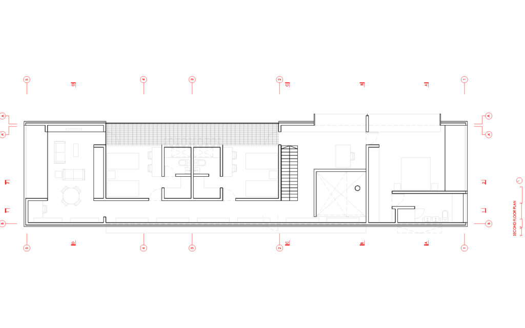
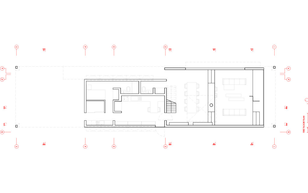
El proyecto propone una mesa de hormigón armado, donde los espacios públicos y servicios están organizados y sobre la cual un volumen de estructura metálica que contiene los dormitorios.
La terraza es una cubierta verde desde la que se puede contemplar todas las vistas lejanas.
Los materiales de los que se compone el proyecto es Hormigón Armado y Acero.

















