Arquitectos:
MATHIAS KLOTZ
CRISTIAN BOZA WILSON
33°23’30.26’’S
70°33’35.39’’O
Santiago
Chile
Superficie Construida: 548 m2
Superficie Terreno: 1703 m2
La Casa Boza – Camus se ubica, casi en la coronacion de un pequeno cerro en el sector de los Dominicos. El terreno se encuentra en el faldeo norte, mirando al valle de San Damian, y enfrentando la imponente Cordillera de Los Andes.
La condicion propia del lugar presenta una topografia muy pronunciada potenciando la condicion de ser un mirador practicamente natural. A Partir de este hecho es que la idea de proyecto se genera al querer aprovechar y enmarcar esta condicion visual de apertura hacia el norte y generar un dialogo constante con la topografia y el cerro.
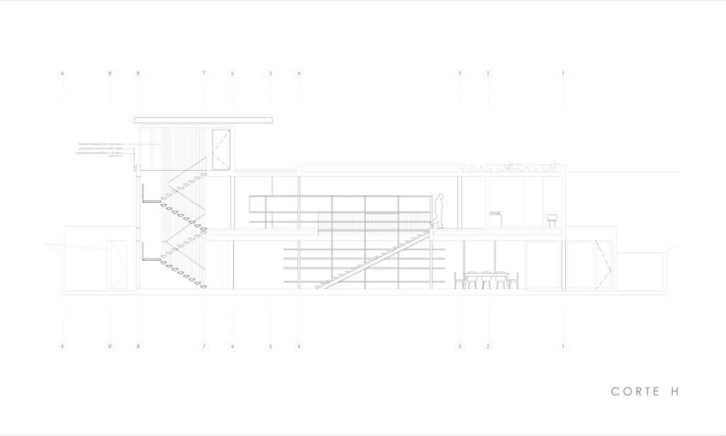
El programa unifamiliar se disena en su primer nivel,a partir de una sucesion de piezas para los ninos, la piscina temperada semiolimpica y la sala de maquinas. Es aqui donde se genera y percibe el patio que mantiene la relacion con el cerro y que al mismo tiempo hace de traga luz para los distintos recintos en cada nivel. La planta superior se organiza a partir del patio de luz antes mencionado en base a 2 naves: uno, el que acoge el programa de la pieza principal, bano y estudio, y el otro que conforma la cocina y servicios. El vacio que queda entre estos volumenes, son una sucesion de espacios fluidos comunes, como terraza, living, pasillos y la biblioteca. Esta ultimade disena como un elemento programatico multifuncional alfuncionar comobiombo entre el patio de luz y el exterior, ser el conector en su sentido vertical con la escalera principal y finalmente como un mueble que ordena los libros.
La casa esta hecha esencialmente de hormigon armado, revestido de una piel de madera en su exterior.En el primer nivel se utiliza. Los cielos son de hormigon a la vista y gran parte de los muros interiores se revistieron de madera de coihue.
Las escaleras y la biblioteca son de fierro pintado negro, al igual que las vigas canal que enmarcan la vista hacia el norte.
Tanto el cuidado por los detalles en la casa y por el mismo por el lugar, son los desafios en torno al desarrollo de una casa de caracteristicas contemporaneas y que respondan a las necesidades respecto a la eficiencia energetica. Esto nos lleva a la utilizacion de una cubierta sembrada por distintas especies nativas del norte de chile, hasta la disposicion de paneles fotovoltaicos. Es asi como una piscina temperada de 25mt, se transforma en un termo para la calefaccion general de la casa. La casa se sustenta con energias renovables y no ocupa gas.
En sintesis, el proyecto Boza-Camus proponeuna manera de habitar la pendiente en torno a un gran patio de luz, convirtiendo la casa en una gran plataforma mirador.

























