11 Mujeres House
Arquitecto:
MATHIAS KLOTZ
Colaborador:
Baltasar Sánchez
32°33’10.19″S
71°27’45.87″O
Zapallar
Chile
Superficie casa: 486 m2
Superficie terreno: 2200 m2
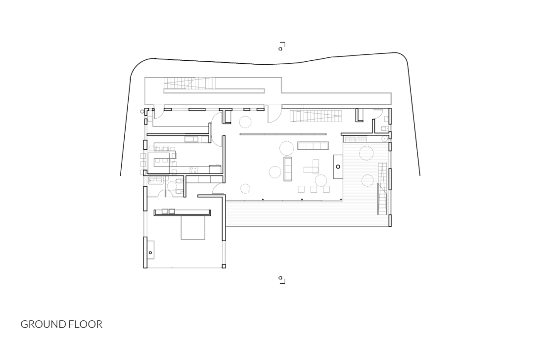
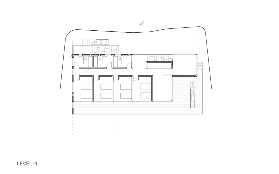
Eleven Women is a holiday house in Beranda. It stands on a site sloping down to Cachagua beach on the Pacific Ocean, 140 kilometers north of Santiago de Chile. The aim was to provide a second home which is spread on three levels for a couple with eleven daughters whose age ranges from four to twenty years old, and to provide all services, a master bedroom, and spaces for entertainment and guests.
The site is on terrain with a steep slope which offers a splendid view over the beach. The three stories are laid out as followed: the ground level is used for the shared spaced and includes game room and TV room; the intermediate level contains bedrooms for the eleven daughters, as well as two living rooms for different age groups; the upper level contains services, a master bedroom, a living room and a family dining room.
Planned in bare concrete with travertine floors, Eleven Women house adapts to the contours of its site by its extremely compact layout that it offers splendid views from every room.
The terraces are spacious and protect the inhabitants from the strong southern winds, while a system of hinged shutters solves the problem of the glare on the west side.







