UTDT + MINOND
El desafío de este Concurso amerita abordarlo integrando las numerosas aristas que componen el problema:
• Un edificio nuevo en un conjunto que fue creciendo con diferentes construcciones alrededor de un vacío central utilizado como playa de estacionamiento.
• Una plaza pública lindante con el predio, pero sin conexión con el Campus.
• Diversos accesos vehiculares, peatonales.
• Múltiples vistas del entorno.
• Un programa que debe compatibilizar distintos usos y distintas escalas.
Proyectamos un edificio que vincula La plaza de El Salvador con el Patio Interior y a su vez enlaza los edificios existentes creando un circuito de comunicación eficiente convirtiendo al campus en un solo organismo.
El edificio proyectado limita el vacío central para conformar una verdadero Patio Plaza mediante una arquitectura simple, austera cuya identidad perdure y dialogue en el mismo idioma de los edificios existentes, Sáenz Valiente y Figueroa Alcorta.
Si bien todas las construcciones se escalonaron en el tiempo, con la nueva imagen propuesta se logra un conjunto armónico con individualidades, pero con una sola identidad reconocible y personal: EL CAMPUS DE LA UNIVERSIDAD UTDT
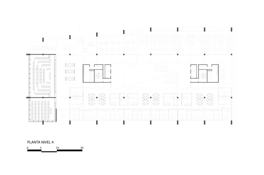
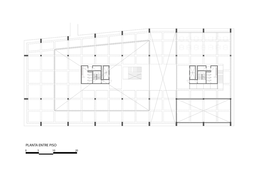
El Patio Plaza interior es el condensador de las circulaciones principales tanto en superficie como en el nivel -1, lo cual permite circular entre los edificios a cubierto.
El Aula para conferencias se encuentra en ese nivel comunicación directa con el Patio Central.
El Proyecto permite una vinculación visual y de recorrido desde el acceso sobre Figueroa Alcorta pasando por la plaza central integrando el edificio objeto de este concurso con la Plaza Publica El Salvador. Esa relación se potencia con un espacio semicubierto (Recova) elevada un metro sobre nivel de la misma. La comunicación es visual con la posibilidad de abrir un acceso en el futuro.
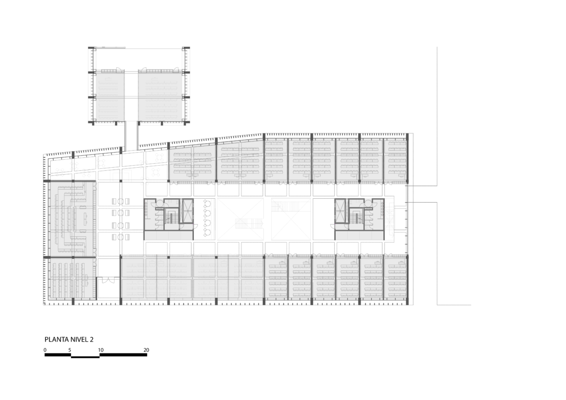
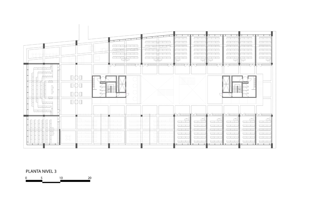
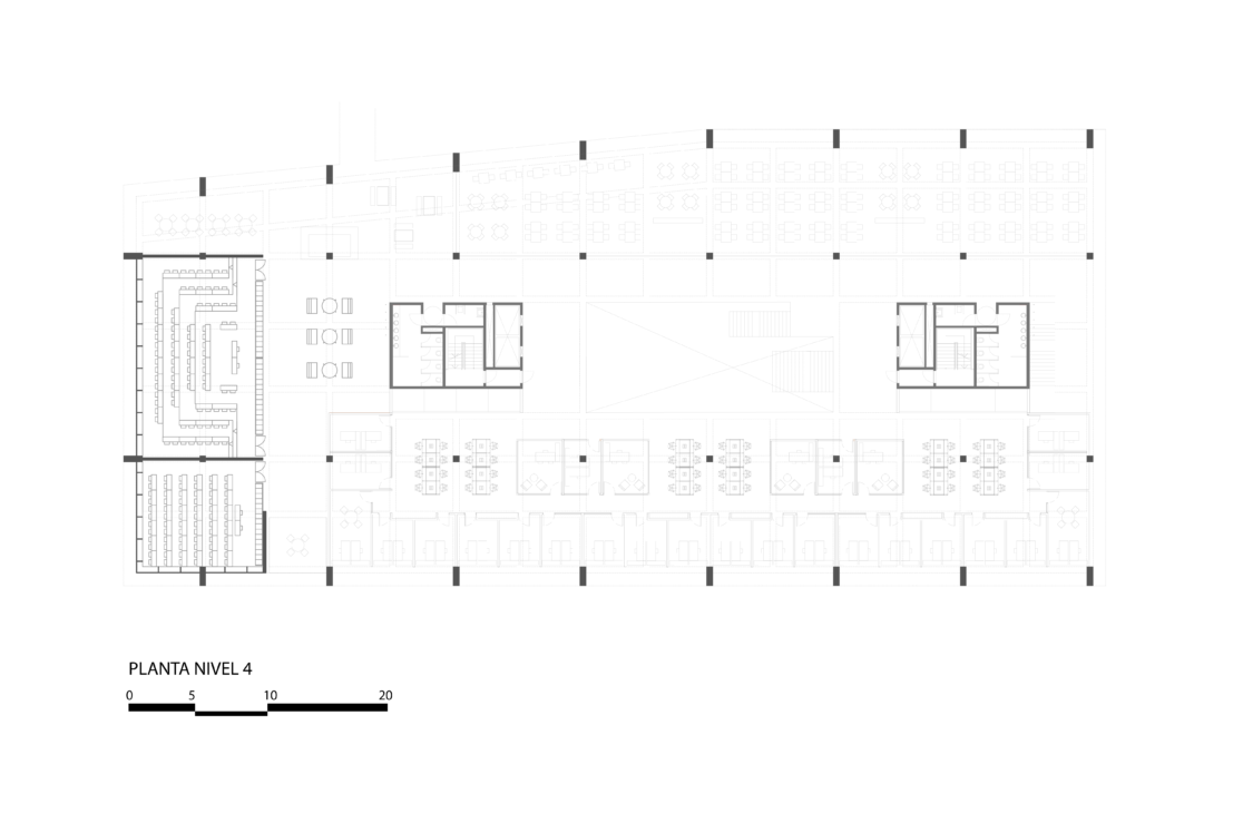
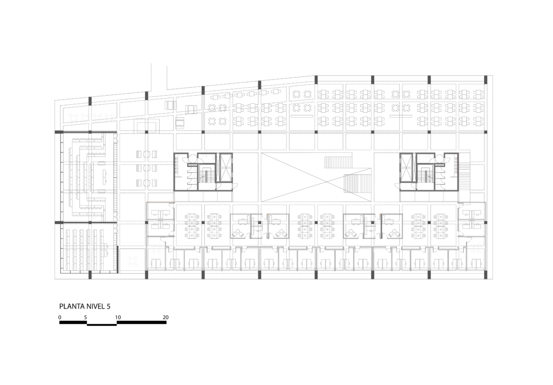
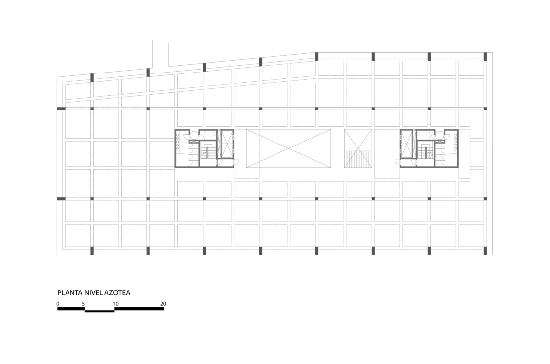
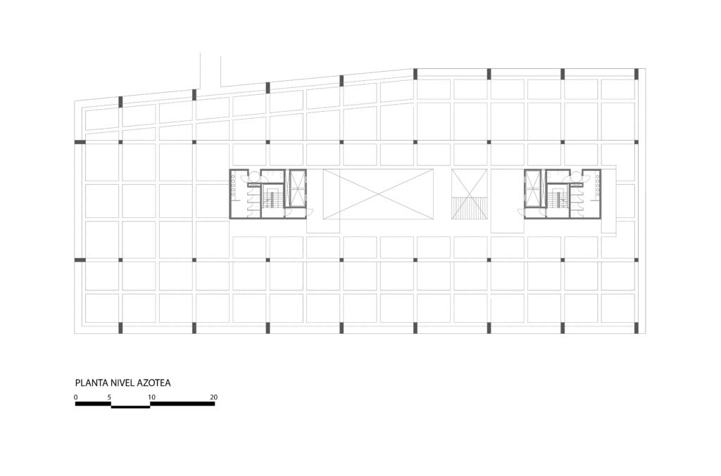
La estructura define una planta tipo con una modulación apta para desarrollo de aulas, a su vez contemplando la versatilidad de poder armar distintas configuraciones acordes a los futuros cambios tanto funcionales como programáticos.











