Concurso Aeropuerto Pichoy
Arquitectos
MATHIAS KLOTZ + MASSMAN ARQUITECTOS
Colaboradores
Maximiliano de la Jara
Joaquín Iturriaga
Camila Cordova (Massman Arquitectos)
39°39’02.0″S 73°04’52.5″W
Mariquina, Chile
2021
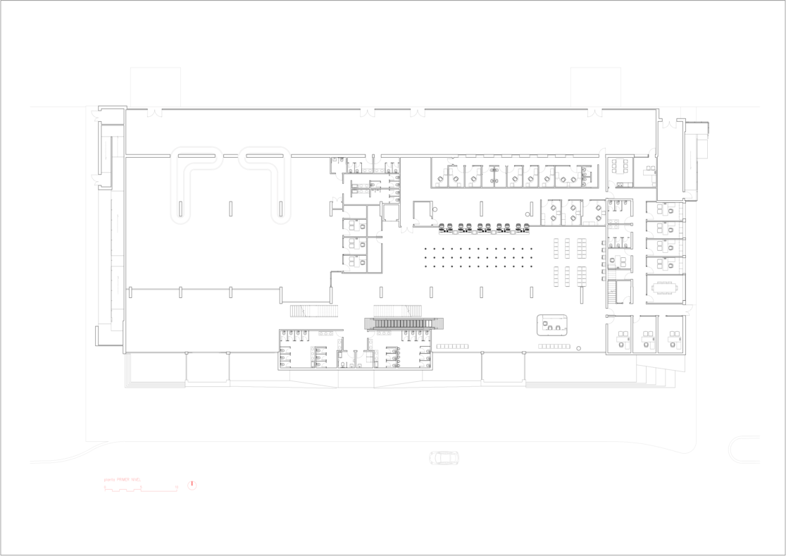
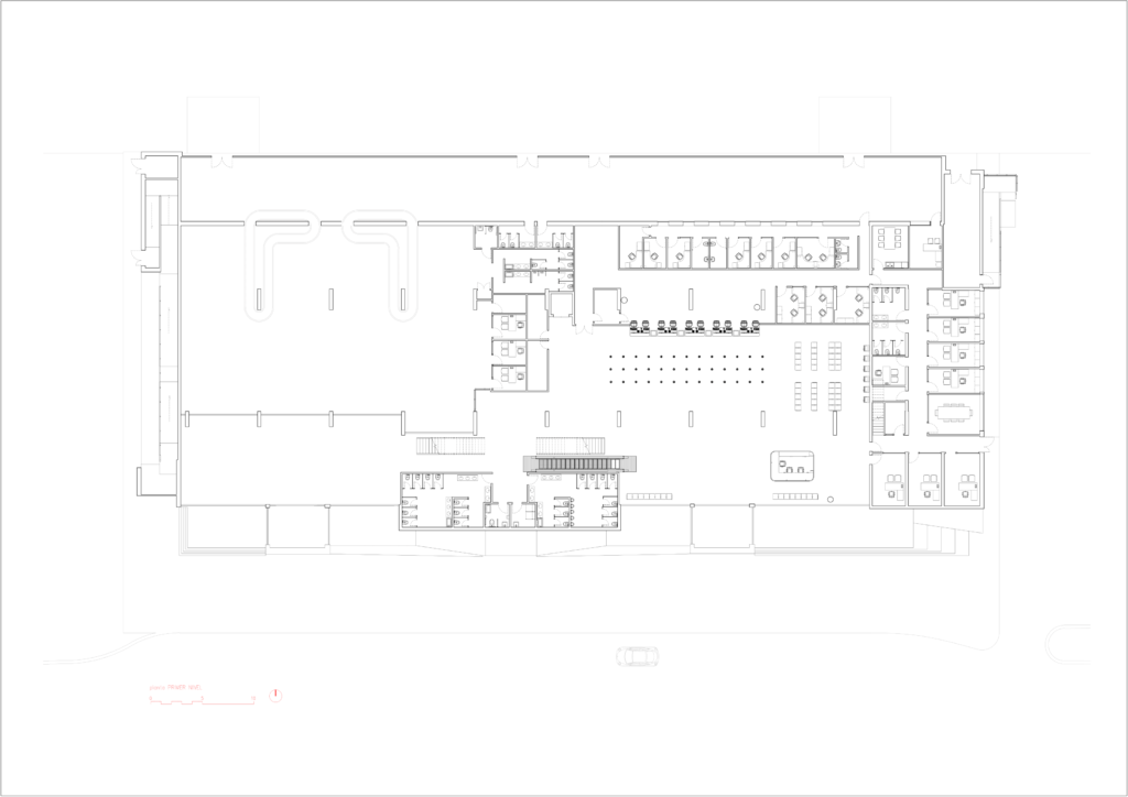
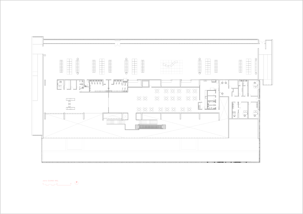
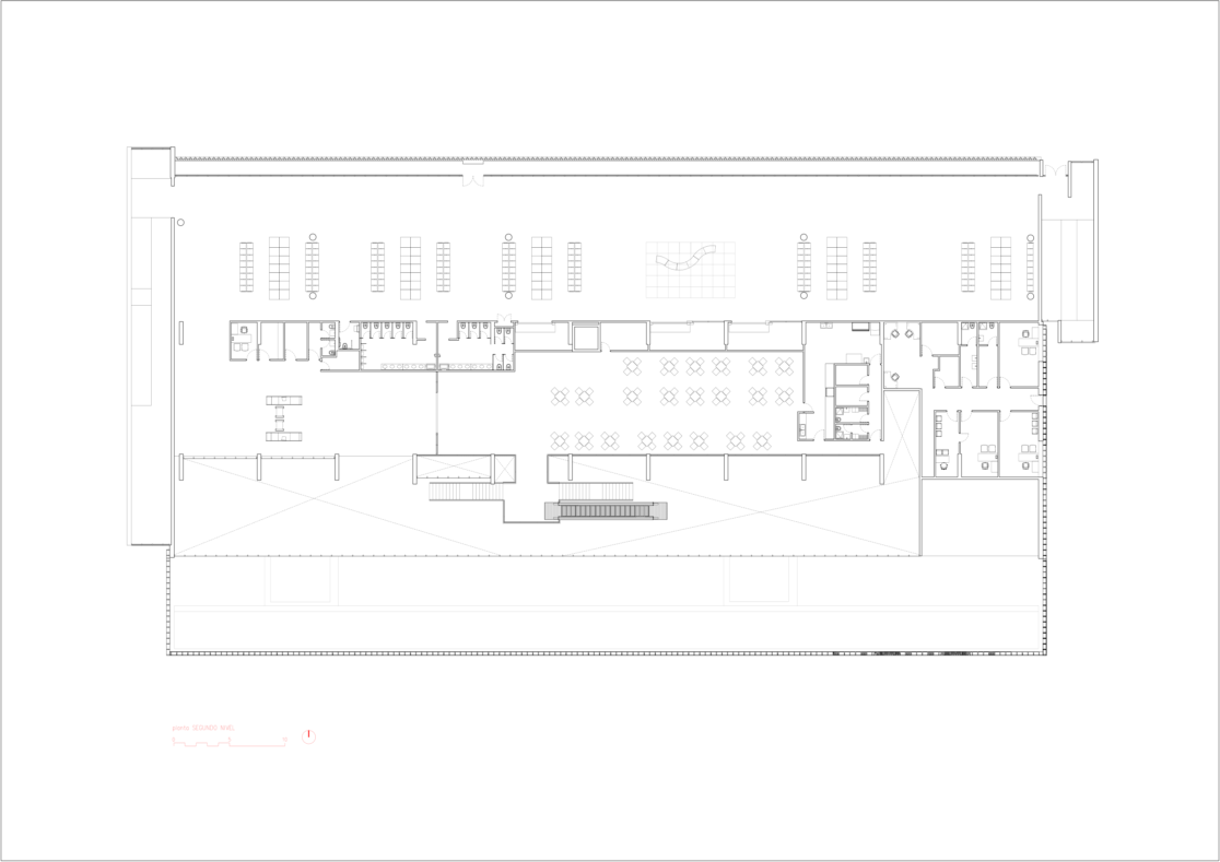
1.- GENERALIDADES
El Proyecto corresponde al mejoramiento integral del edificio terminal de pasajeros del aeródromo de Pichoy.
























