34°55’03″S / 54°51’04″W
MATHIAS KLOTZ + EDGARDO MINOND
Colaboradores: Eduardo Ruiz – Mariano Albornoz
Constructor: Clevelit – Germán Herrera
Ingeniero Calculista: Federico Armand Pilon
Gerenciamiento de obra: Rafael Calvette – Nadia Gutiérrez
Ubicación: Punta del Este / URUGUAY
2025
La Casa X3, son tres viviendas, ubicadas a orillas de la costa atlántica en la Barra, Uruguay, a pocos metros de la playa Montoya.
Las casas están literalmente sobre el paseo peatonal del borde costero.
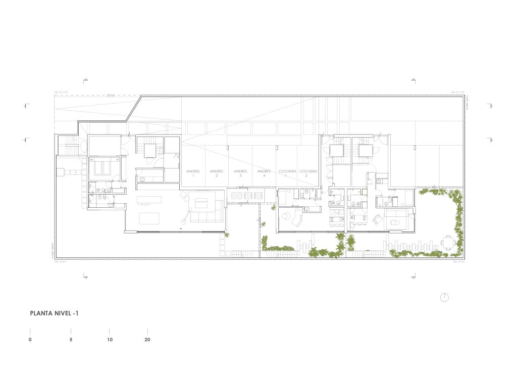
Se trata de dos volúmenes de hormigón visto, posados sobre un zócalo en un foso que alberga el subsuelo.
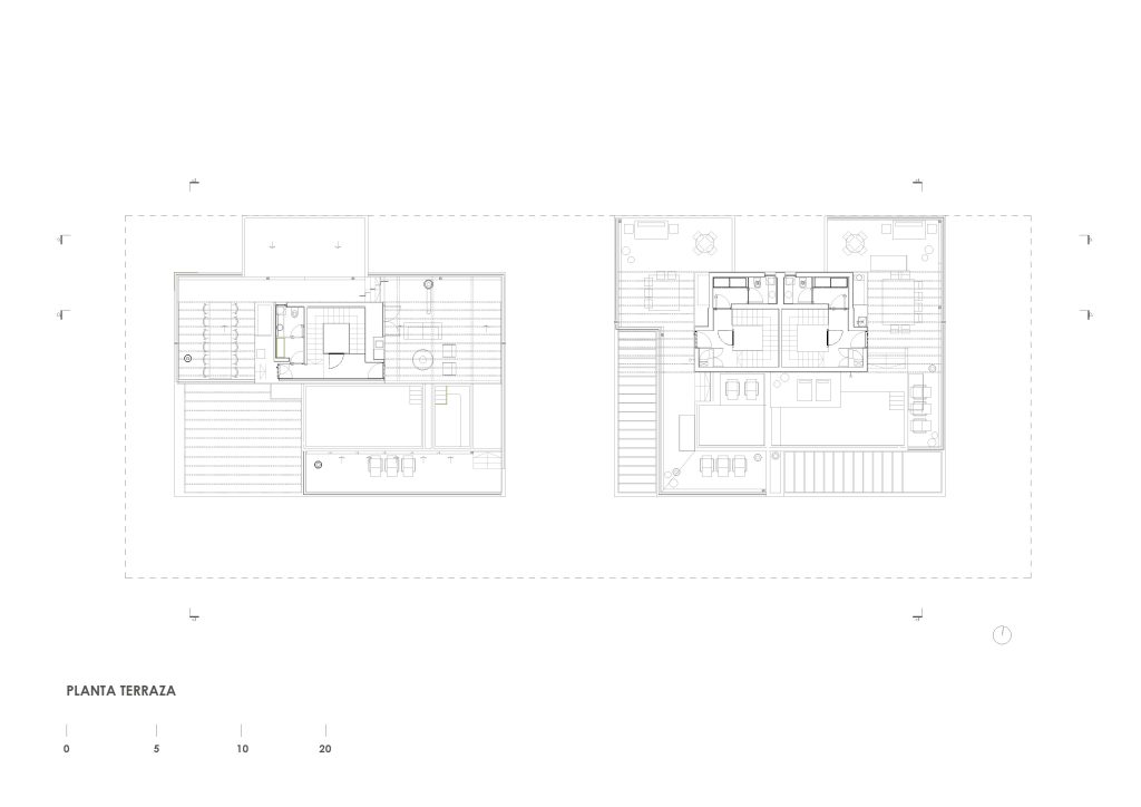
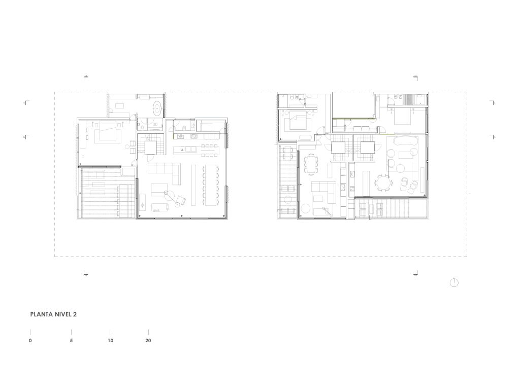
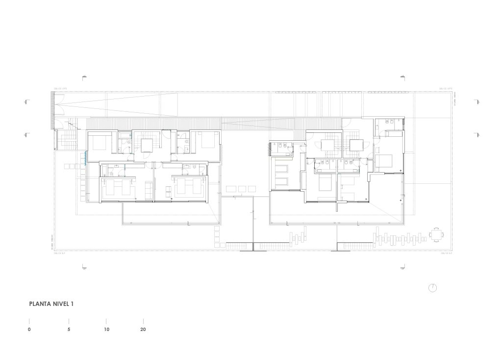
Cada casa es de tres plantas y se distribuyen de manera similar, ubicando programas de invitados y habitaciones secundarias en subsuelo y planta baja, liberando el primer piso para el cuarto principal y los espacios comunes. Las tres tienen además un techo jardín, donde se ubica el parrillero y la pileta, con unas vistas privilegiadas al entorno.
La cochera ubicada en subsuelo, es un espacio abierto y continuo, de donde nacen los dos volúmenes que organizan el espacio.
La materialidad es hormigón visto, piedra y madera, pensando en la resistencia de estos materiales a las inclemencias del lugar.




































