MATHIAS KLOTZ + EDGARDO MINOND
Colaboradores: Nazareno de Souza – Yamil Kairuz
Constructor: Pavic S.R.L.
Ingenieros Calculistas: ARS Ingeniería – Stescovich
Ubicación: Buenos Aires / ARGENTINA
2025
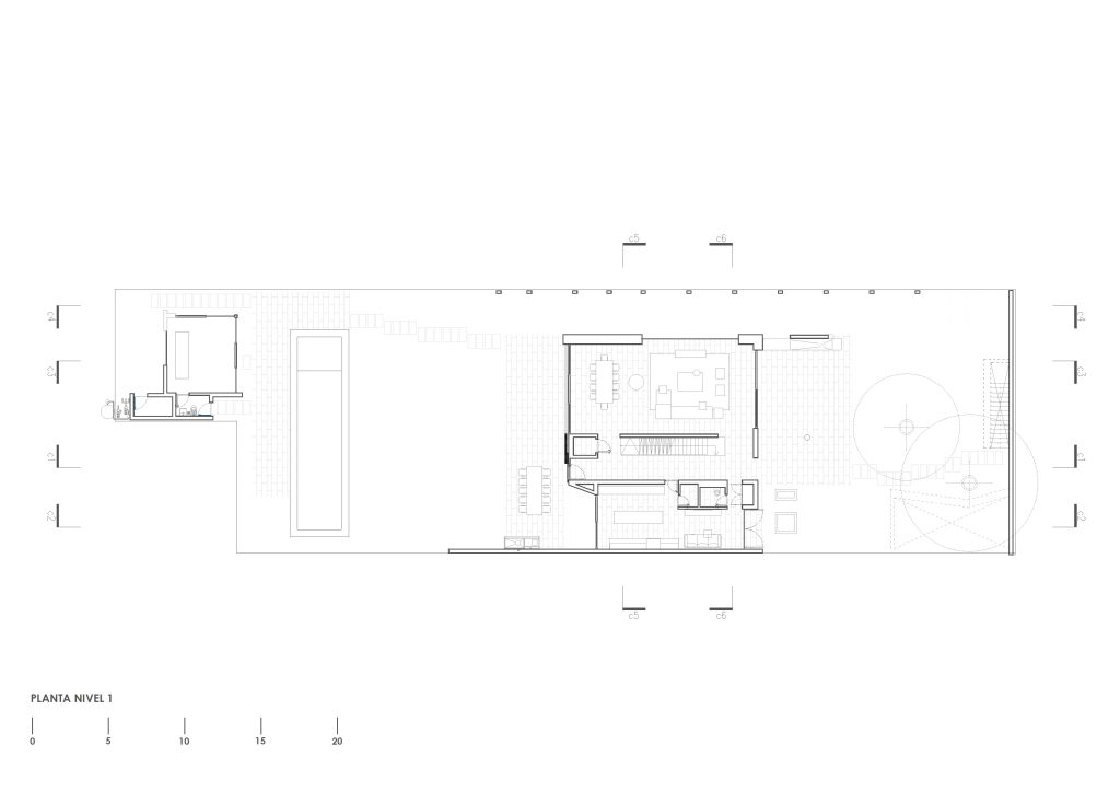
La Casa LR, es una vivienda, ubicada en San Isidro, Buenos Aires. Se trata de un programa unifamiliar en un lote angosto y profundo, en un centro de manzana.
En planta baja ubicamos todo el programa público a lo largo de una secuencia de espacios sucesivos, flanqueados por dos pérgolas, que miran al jardín anterior y posterior respectivamente. El espacio común es continuo y se puede recorrer tanto física como visualmente en toda la longitud del lote.
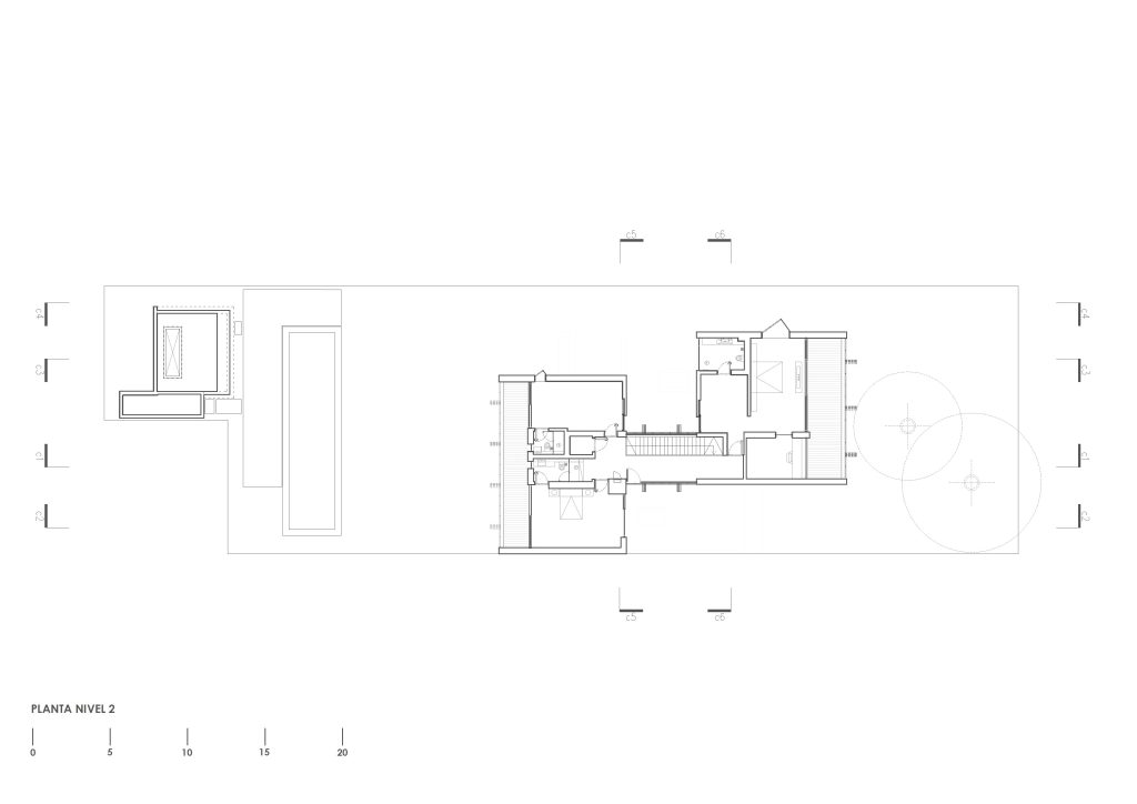
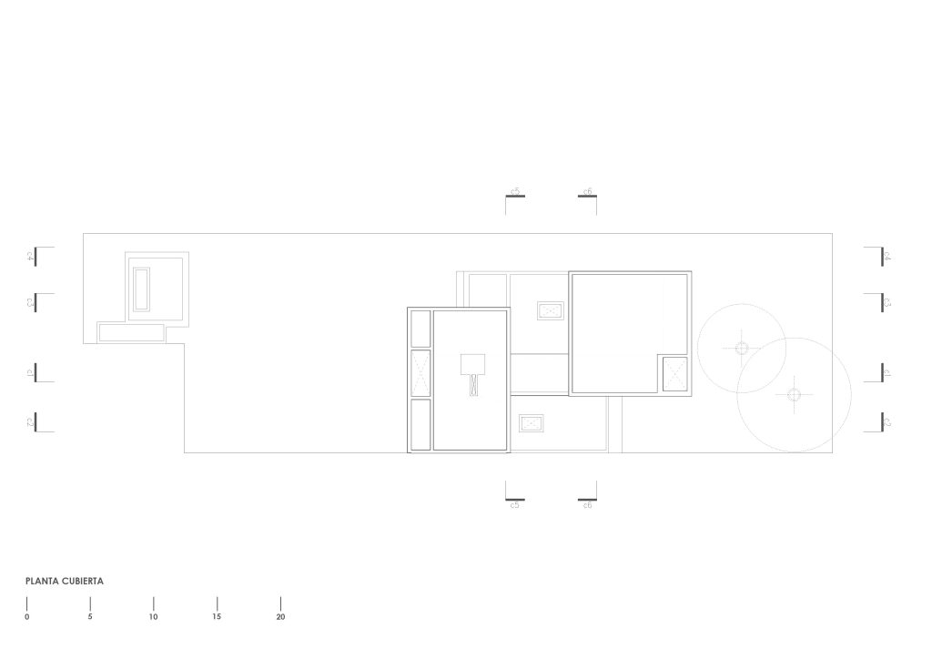
En el primer piso ubicamos las habitaciones y en el subsuelo la cochera. El nombre de la casa corresponde a un lapacho rosa muy importante situado en el jardín del frente a la calle, el cual determinó el modo de acceso, la ubicación del cuarto principal y el acceso a la cochera.
La casa está concebida materialmente como unos volúmenes de madera sobre una base de hormigón y cristal.
Los materiales empleados son madera, piedra, hormigón y cristal.






































