ARQUITECTO
Mathias Klotz
COLABORADORES
Catalina Poblete
Francisco Reyes
Gaia Cambri
CONSTRUCTORA
Alzza
PAISAJISMO
Juan Grimm
FOTOGRAFIAS
Roland Halbe
SUPERFICIES
Superficie construida: 320 m2
Superficie de terreno: 1964 m2
UBICACIÓN
Zapallar, Chile
AÑO DEL PROYECTO
Abril 2019
FECHA DE INICIO-FINALIZACION
2020 – 2022
La Casa Grau corresponde a una segunda vivienda, ubicada en Punta Pite, Zapallar,
El encargo fue una casa que tuviera a una pareja que pasaría largos periodos del año utilizándola como primera vivienda y que en el verano y festivos recibiría a amigos e hijos.
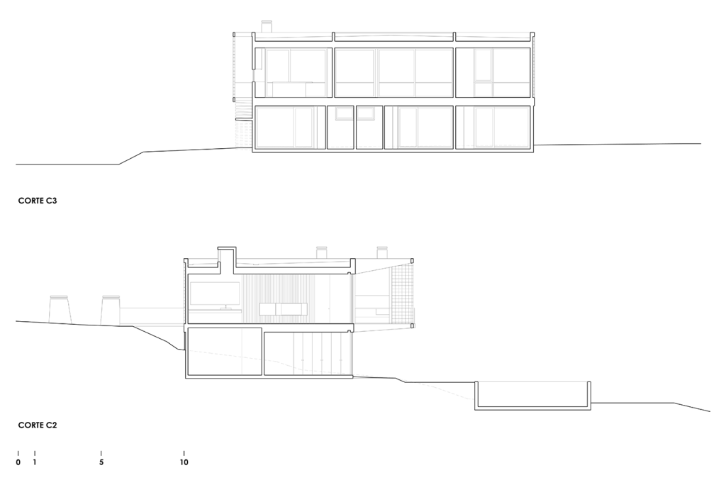
Es por esto que la vivienda fue dividida en dos niveles, haciendo una planta principal, en un primer piso, donde se encuentran los espacios comunes, cocina y dormitorio principal, y en la planta baja, donde están las habitaciones para invitados.
El terreno contaba con dos antiguos estanques de almacenamiento de agua enterrados, lo que se unieron y se anexaron a la casa sirviendo uno de fogón y el otro como cava de vinos.
El acceso principal a la casa es a través de la terraza la cual se comunica directamente en su parte posterior con el terreno aprovechando el desnivel que este presenta.
El material primordial de la casa es hormigón visto, para proteger su estructura del ambiente salino.
Complementariamente a estos dos niveles se puede acceder al techo de la casa el cual funciona como mirador, y lugar de relajo con la incorporación de un hot tub.
Interiormente el hormigón fue complementado con placas de madera de castaño.
El pavimento, está hecho de mármol travertino para lograr una continuidad entre el interior y el exterior.
El jardín fue hecho por Juan Grimm, y esta diseñado en base a una serie de círculos que se relacionan formalmente con el fogón y la cava, en contraste geométrico con la ortogonalidad de la casa.
El volumen se revistió con bloques de cemento de tal manera de generar un mayor nivel de abstracción y a la vez, guardar la medida privacidad respecto los vecinos colindantes.








































