33°25’11.30″S/70°37’12.4
IGNACIO COVARRUBIAS/ MATHIAS KLOTZ
Héctor Hormazábal
Santiago, Chile2009
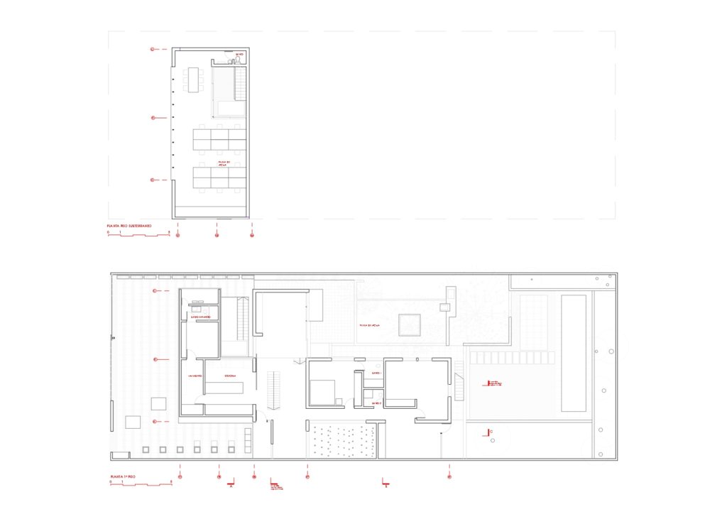
La Casa Los Colonos es la segunda ampliación de una existe que fue diseñada y construida en el año 1965 por el arquitecto Ignacio Cobarrubias. Originalmente la casa consistía en volúmenes blancos construidos de albañilería reforzada, la cual incluía espacios públicos, dormitorios y un área de servicio que era recubierta por madera oscura. En 2004, 90 metros cuadrados de un estudio subterráneo fueron añadidos junto con la transformación del área de servicio, la cual fue demolida para la construcción del subterráneo. La reconstrucción fue nuevamente recubierta en madera oscura y respeto la geometría original de la antigua estructura, para así mantener el espíritu de la casa original.
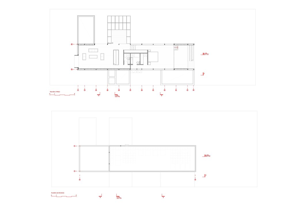
Esta segunda ampliación añade un segundo nivel a la vivienda, la cual contiene el dormitorio principal y una nueva área de estudio y descanso. La planta está construida en sus principales ejes por una estructura metálica que descansa en la losa original y utiliza un revestimiento metálico negro para recubrirla. El nuevo revestimiento cubre tanto el nuevo nivel como el área de servicio, dando continuidad visual entre ambos elementos. Además, el nuevo programa exterior consta de una terraza con maceteros y un jardín en la azotea con un paisaje de pradera natural, que servirá como aislamiento y mirador a la ciudad y sus alrededores.
La Casa Los Colonos, es la suma de adiciones que tratan de preservar el espíritu original de una excelente mano de obra de 45 años de edad para tener una coherencia del conjunto, como si las adiciones hubiesen sido planeadas originalmente.
















