Arquitecto:
MATHIAS KLOTZ
Colaborador:
Baltasar Sánchez
32°33’10.19″S
71°27’45.87″O
Zapallar
Chile
Superficie casa: 486 m2
Superficie terreno: 2200 m2
La casa Once Mujeres, es una residencia de veraneo, ubicada en la ladera de una duna, a 160 kilómetros de la capital, donde se reúnen padres, hijos y amigos a pasar fines de semana, o períodos más largos que se pueden llegar a extender por varias semanas especialmente en el verano.
El nombre Once Mujeres se debe a que los dueños, son una pareja de divorciados, que entre ambos suman 11 hijos, todas mujeres, cuyas edades fluctúan entre la mayoría de edad y los 8 años.
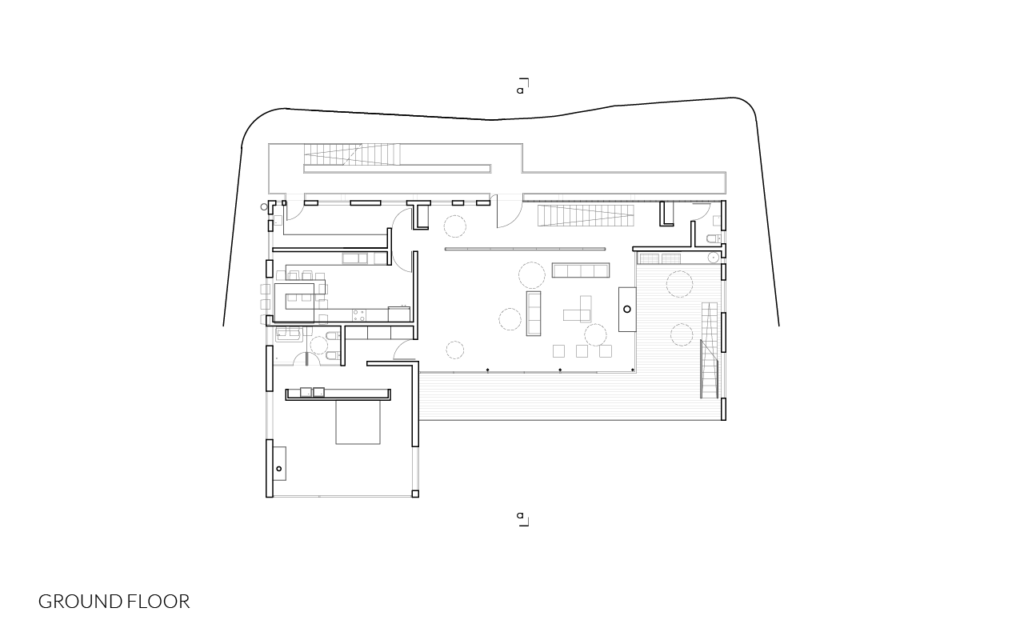
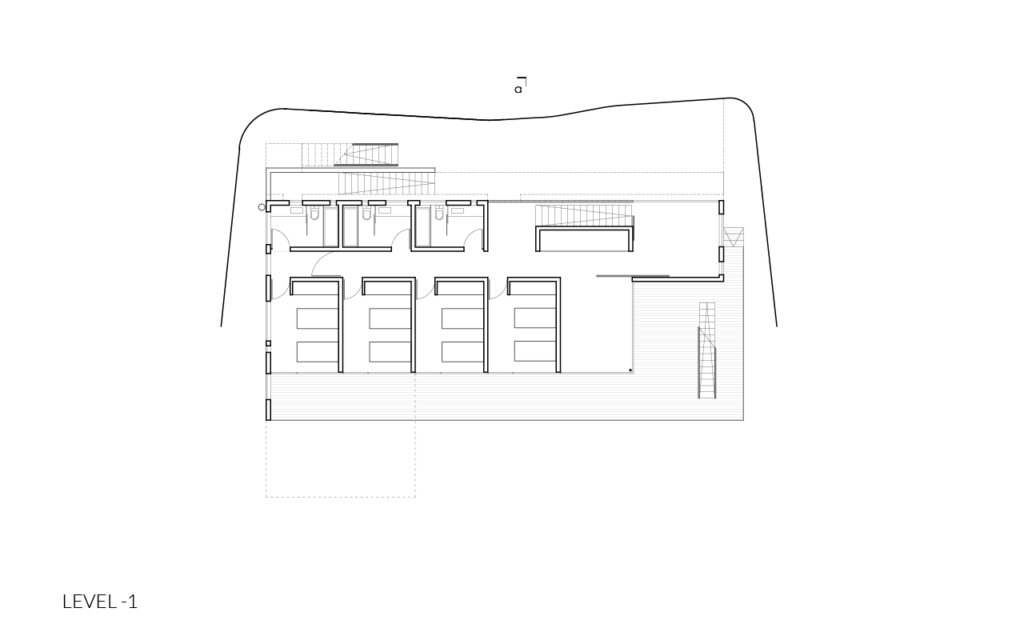
El lugar posee una magnífica vista al Pacífico, a la vez que una fuerte pendiente hacia el mar, con magníficas vistas que debían ser explotadas. Es por esto que el programa se desarrolla en tres niveles, además de una habitación para invitados bajo la piscina, en que la totalidad de las habitaciones miran al mar.
La casa Once Mujeres tiene como desafío resolver un vasto programa en un terreno que pese a su superficie, está fuertemente restringido por el código de edificación y las condiciones topográficas. El volumen resultante y la superficie construida, son el máximo posible en ambos casos.
Para lograr esto, lo primero fue hacer un corte vertical de nueve metros de altura, que permitiera el ingreso de luz y aire por la fachada oriente, donde se ubica el ingreso.
Este corte generan gran muro de contención que fue resuelto utilizando la el sistema de Tierra Armada, que permite luego el crecimiento de vegetación, minimizando el alto impacto físico y visual de la operación.
La casa está planteada como un volumen monolítico de hormigón visto, que alberga la sala de juego y el cuarto de TV en el zócalo, las habitaciones y estares de jóvenes en la planta baja, y el estar principal, cocina y habitación principal en el nivel superior.







